iPanel-IDC(列头柜)
iPanel-IDC(列头柜)是一个聚集了大量服务器、存储设备、网络设备及配套UPS、精密空调等设备的IT设备场所,是实现数据信息的集中处理、存储、传输、
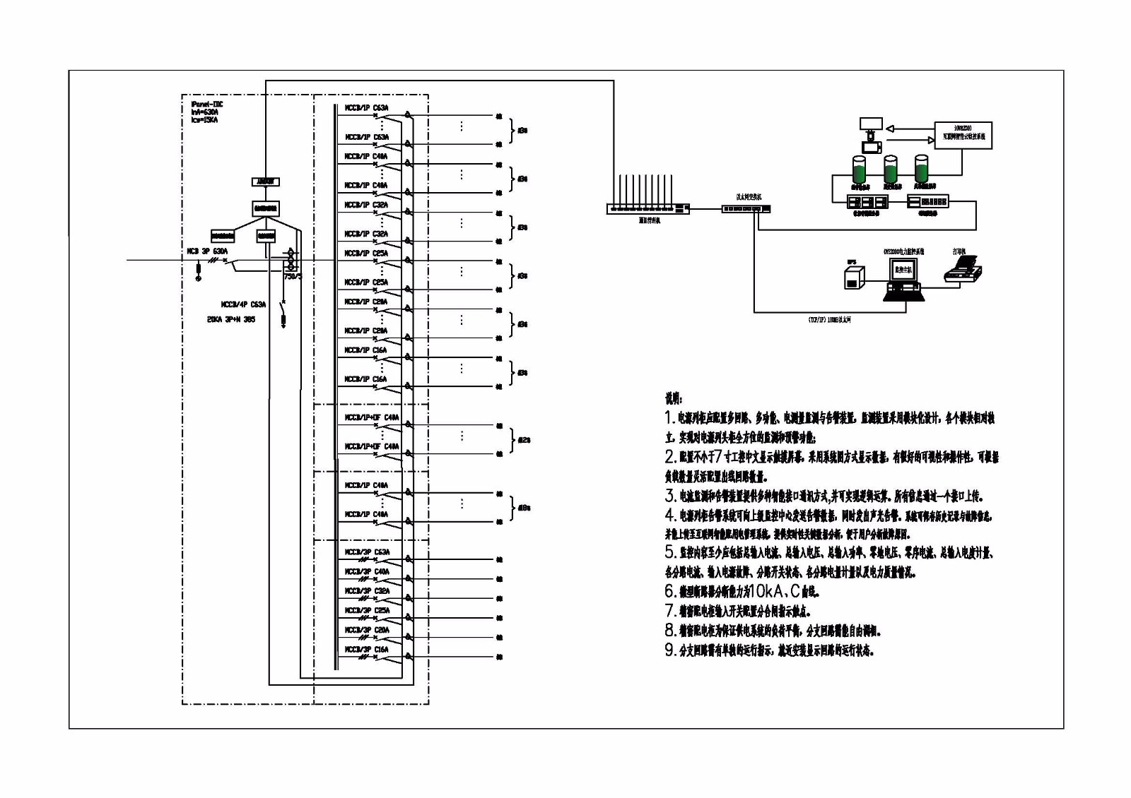
交换和集中管理等业务的服务平台。数据中心精密配电系统为机房内所有的IT设备提供稳定、可靠的动力电源支持。
功能特性:
1. 优雅的外观及先进的加工工艺
2. 安全可靠的结构
各功能单元安全防护隔离设计、增加对人身意外触电的防护。
出线单元用户接线端子设计,方便使用并保证操作安全。
控制单元强弱电分离
3. 级联式模块化设计
采用级联式模块化功能单元设计,只需将模块拼装好几颗轻松在线扩容,保证了供电的连续性。
4. 先进的独立母排系统
数据中心精密配电具有单项供电的特征。可实现在线调相,将负荷进行合理分配,保证三相平衡。独立的母排系统设计,热插拔技术为配电系统带来了更高的安
全性及灵活性。采用通用型母排配适器,抑郁拆除和装配,系统调整更快捷。

5. 列头柜集成了自主研发的数据采集、运算、分析、预警模块和互联网智能管理系统平台,实现了智能监测、智能显示、智能预警、智能控制的精密管理。



